
PVC window Synego CLIPP
Technical specifications of the PVC-ALU window Synego Clipp
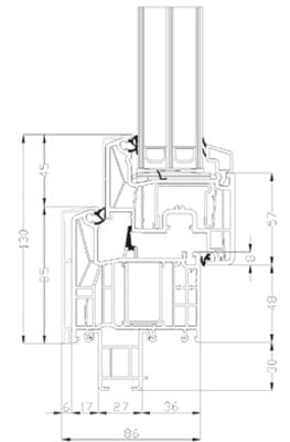
- 6/7 PVC profile Rehau
- Heat transfer coefficient of the frame profile Uf = 1.0 W/m2K
- Heat transfer coefficient of the window up to Uw = 0.77 W/m2K
- Powder-coated aluminium cladding
- Suitable for low-energy and passive houses
PVC-ALU window Synego CLIPP with triple glazing (4 – 18 – 4 – 18 – 4 TGI) is a very durable and the most energy-efficient system of PVC Nagode windows (Uw = 0.77 W/m2K). It is suitable for passive houses.
Thanks to the future-oriented design, PVC-ALU windows Synego CLIPP allow various architectural options. The mounting of the window is fast and simple due to its practically designed profile, which is made of recyclable material, making the window to be recognized as environmentally friendly. The profile Synego is extremely stable because it is made of high-tech material called RAU-FIPRO. What is more, aluminium cladding additionally protects the window frame from bad weather conditions and makes it highly damage-resistant.
You can design profiles in line with your aesthetic preferences; you can choose the indoor color of the profile in a decorative foil or varnish, and the outdoor aluminium color from the RAL color chart, as well as other accessories for PVC windows.
PVC-ALU windows Synego CLIPP of the line SYNEGO are also available in the PVC version without the aluminium cladding, namely with the profile Synego.
You can adjust the following accessories for PVC windows in line with your wishes:
When choosing windows for your home, it is important to decide for a suitable window frame as well as for the right type of glazing.
Window shading systems not only ensure privacy in the evening but also help to prevent overheating inside your house in the summer.
Attractive window handles made of various materials. There are also lockable versions available.
You can adjust interior window sills in line with your preferences, choosing between various colors and types of material.
Standard design of Roto NT metal fittings, additional options and ventilation.
Insect screens protect you from insects and make sure you sleep peacefully through the night. They also improve the appearance of your windows.
Choosing the right color of windows contributes a lot to the appearance of your house.
The installation of PVC windows is a fast and easy process if it is carried out by a qualified and experienced installer.
